Charmantes Landhaus mit weitläufigen 1.800m² Grundstück inmitten des Wendlands

Objekt-Nr.: 136

Beschreibung

Willkommen in dieser schönen Immobilie: Ein charmantes Landhaus aus dem Jahr 1926, das sich am Rande des idyllischen Ortes Schnega befindet. Die Immobilie präsentiert sich in einem sehr gepflegten Zustand und hat eine beeindruckende Wohnfläche von 300 m², verteilt auf zwei Etagen.

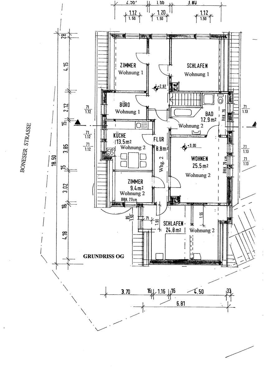
Das Erdgeschoss des Landhauses überzeugt mit einer großzügigen Wohnküche, einem ehemaligen Seminarraum mit einem sonnigen runden Erker und Kaminofen, drei zusätzlichen Zimmern, einem modernen Bad mit Dusche, einem praktischen Gäste-WC und einem Abstellraum. Der ehemalige Seminarraum und ein dahinterliegendes Zimmer sind durch eine einladende Glastür miteinander verbunden, ebenso wie der Flur durch einen geschmackvollen Windfang mit Glastür aufgewertet wird. Von der Küche aus erreichen Sie den Wintergarten, der Sie zum Innenhof führt und Zugang zum Hauswirtschaftsraum und Keller bietet.
Der teilweise unterkellerte Bereich offeriert zwei große Abstellräume sowie den Heizungsraum, der mit einer Heizungsanlage, Öltanks und einem Pufferspeicher ausgestattet ist.

Das Dachgeschoss des Landhauses besticht durch sechs geräumige Zimmer, eine zusätzliche Küche und ein Bad. Hier besteht die Möglichkeit, eine separate Wohnung mit drei Zimmern, Küche und Wannenbad zu nutzen, was die Immobilie sowohl für eine große Familie als auch für eine Wohngemeinschaft attraktiv macht.

Ein besonderes Highlight ist die große Scheune, die über einen Zwischenbau mit dem Hauptgebäude verbunden ist. Sie dient aktuell als Abstellraum für Gartengeräte und -möbel, bietet jedoch vielfältige Nutzungsmöglichkeiten.

Das weitläufige Grundstück ist liebevoll mit einer Vielzahl von Bäumen und Pflanzen angelegt, lässt jedoch zugleich viel Raum für persönliche Gestaltungsideen. Der schöne Garten bietet sowohl sonnige als auch schattige Plätze, perfekt zum Entspannen und für Kinder und Haustiere zum Spielen und Toben. Ein kleiner Teich fügt sich harmonisch in die Landschaft ein und schafft ein beeindruckendes Biotop.

 

Ausstattung

Das Objekt befindet sich in einem sehr guten Gesamtzustand.

-Heizung: Ölzentralheizung aus dem Jahr 1991
-Fenster/Türen: Isoglas
-Bodenbelag: Natursteinböden, Parkett, Dielen, Fliesen
-Internet: Glasfaser noch nicht vorhanden
-2 Kaminöfen 1 Kachelofen

+++

Energieausweis
-Energieausweistyp: Bedarfsausweis
-Energieträger: Öl
-Endenergiebedarf: 279,1 kWh/(m2*a)
-Energieeffizienzklasse: H
-Energieausweis gültig bis: 08.01.2034

-Baujahr: 1926

 

Lage

Die charmante Immobilie liegt in der idyllischen Gemeinde Schnega, Deutschland. Diese ruhige und naturnahe Umgebung bietet eine perfekte Balance zwischen Erholung und guter Anbindung an alltägliche Einrichtungen.

Schnega und die umliegenden Gemeinden bieten eine Vielzahl von Freizeitmöglichkeiten, sodass sowohl Erholungssuchende als auch Familien hier ihr Paradies finden.

Inhalte von Google Maps werden aufgrund deiner aktuellen Cookie-Einstellungen nicht angezeigt. Klicke auf die Cookie-Richtlinie (Funktionell), um den Cookie-Richtlinien von Google Maps zuzustimmen und den Inhalt anzusehen. Mehr dazu erfährst du in der Google Maps Datenschutzerklärung.

Kaufpreis: € 149.500,-- (VB)

Vermittlungsprovision: Mit Abschluss eines notariellen Kaufvertrages werden 3,57 % inkl. ges. MwSt. des Kaufpreises als Vermittlungsprovision für den Käufer fällig. Irrtum und Zwischenverwertung bleibt vorbehalten. Alle Angaben beruhen auf Aussage des Verkäufers oder Dritte. Ein Maklervertrag kommt zustande, wenn Sie von diesem Angebot gebrauch machen, z. B. wenn Sie sich mit uns oder dem Eigentümer direkt in Verbindung setzen. Die angegebene Courtage zahlen Sie nur, wenn ein Vertrag über das angebotene Objekt mit Ihnen zustande kommt, selbst wenn wir beim Vertragsabschluss nicht mitwirken sollten.


Kontaktformular

Hinweis: Bitte die mit * gekennzeichneten Felder ausfüllen.