Ländliches Refugium mit Geschichte - Fachwerk-Resthof von 1887 in Schnackenburg-Holtorf

Objekt-Nr.: 390

Beschreibung

Eingebettet in die idyllische Landschaft der niedersächsischen Elbtalaue erwartet Sie in Holtorf bei

Schnackenburg ein historischer Resthof aus dem Jahr 1887 – ein liebevoll erhaltener Fachwerkhof mit viel

Charme, Platz und Potenzial. Auf einem großzügigen Grundstück von ca. 5.347 m² bietet das Anwesen rund

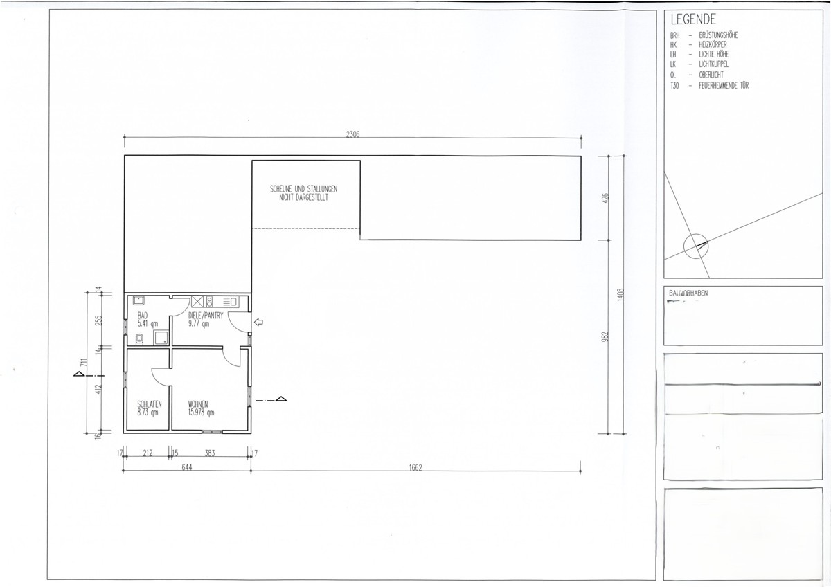
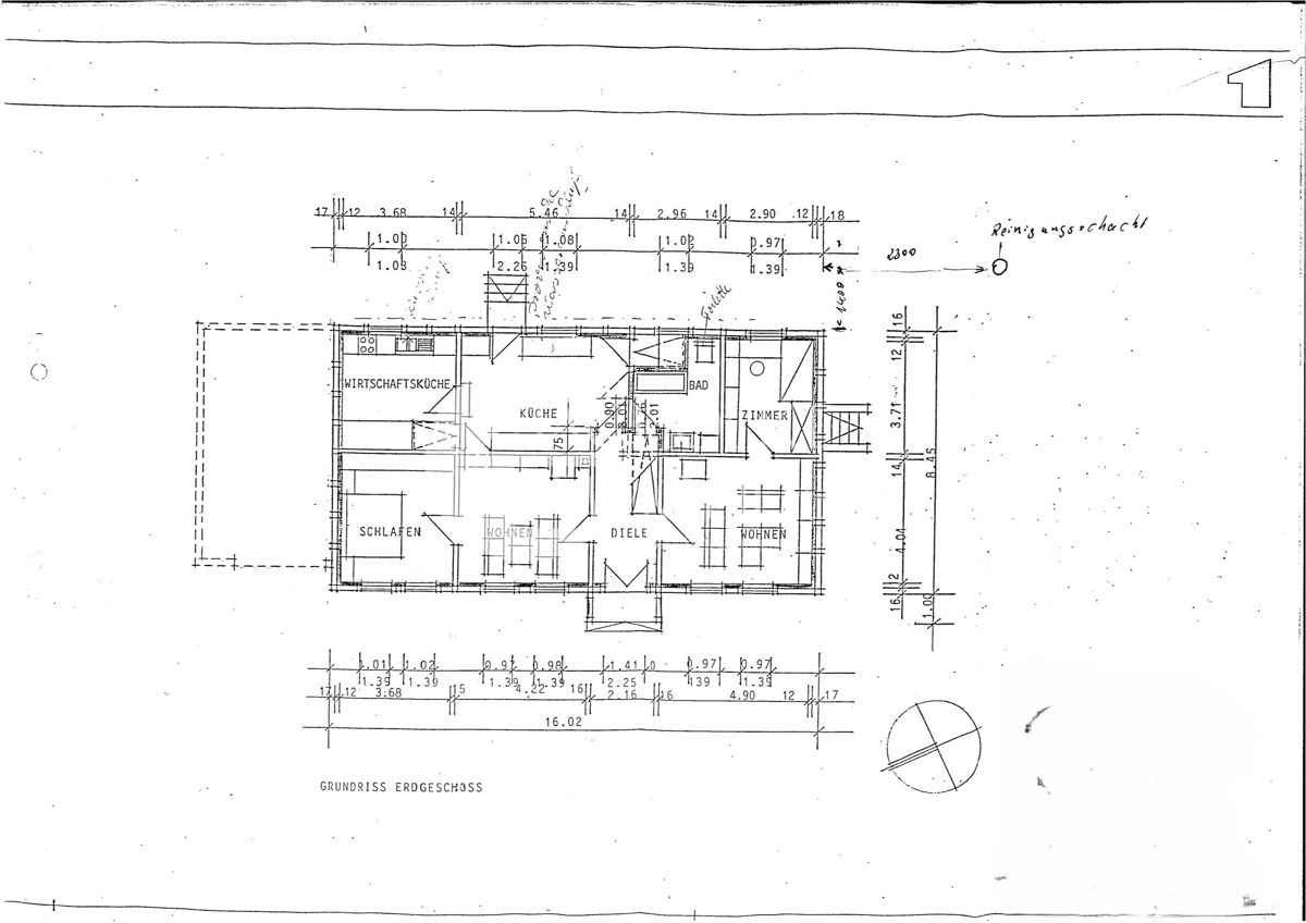
216 m² Wohnfläche mit insgesamt acht Zimmern und eignet sich ideal für Familien, Selbstversorger oder

Menschen, die das Landleben in seiner Ursprünglichkeit schätzen.

 

Das Wohnhaus überzeugt durch klassische Fachwerkarchitektur und eine harmonische

Verbindung aus nostalgischen Details und modernen Elementen. Zwei gepflegte Badezimmer, eine moderne

Einbauküche im Erdgeschoss sowie eine offene Küche im Obergeschoss bieten zeitgemäßen Komfort. Für

behagliche Wärme sorgen eine Elektro-Nachtspeicherheizung, zwei historische Kachelöfen im Erdgeschoss,

ein moderner Kaminofen im Obergeschoss sowie Infrarot-Deckenheizungen. Die Ausstattung umfasst

doppelt verglaste Fenster, Dielen- und Terrazzo-Böden, Fliesen sowie Laminat. Ein Glasfaseranschluss bis

ins Haus sichert schnelle Internetverbindungen, die Abwasserentsorgung erfolgt über eine eigene

Kläranlage.

 

Zum Anwesen gehören außerdem eine große, mit Blauregen und Kiwi bewachsene Scheune sowie mehrere

vielseitig nutzbare Nebengebäude – ideal als Werkstatt, Atelier, Lagerfläche oder für Tierhaltung.

In einem der Nebengebäude, dem sogenannten Altenteil, befindet sich eine ausgebaute Ferienwohnung mit zwei Zimmern, Küche und Bad.

 

Der Resthof bietet viel Spielraum für individuelle Gestaltungen und Modernisierungen. Ein authentischer Ort mit Charakter – perfekt für alle, die Weitblick, Ruhe und kreative Entfaltungsmöglichkeiten suchen.

 

Ausstattung

  • Heizung: Elektro-Nachtspeicherheizung, 2 historische, funktionsfähige Kachelöfen im Erdgeschoss, moderner Kaminofen im Obergeschoss, Infrarot-Deckenheizung
  • Fenster/Türen: doppelt verglast
  • Bodenbelag: Dielen, Terrazzo-Böden, Fliesen, Laminat
  • Eindeckung: Haupthaus=Faserzementplatten
  • Nebengebäude=Ziegel und Faserzementplatten
  • Internet: Glasfaser bis ins Haus
  • Grundstück/Erschließung: Kläranlage

 

2 voll ausgestattete Küchen im Wohnhaus: Einbauküche im Erdgeschoss, offene Küche im Obergeschoss

1 weitere kleine Küche im Altenteil

 

Aufgrund des Denkmalschutzes besteht keine Energieausweispflicht.

 

Lage

Das charmante Resthof-Anwesen befindet sich in der idyllischen Ortschaft Holtorf, einem malerischen Teil der Stadt Schnackenburg in Deutschland. Die Umgebung besticht durch ihre ländliche Ruhe und naturnahe Schönheit, ideal für Naturliebhaber und Erholungssuchende. Holtorf bietet eine perfekte Mischung aus ländlichem Charme und einer einladenden Dorfgemeinschaft. Schnackenburg, in unmittelbarer Nähe, ist bekannt für seine historischen Reize und seine direkte Lage an der Elbe, die zu ausgedehnten Spaziergängen und Fahrradtouren einlädt. Die Region zeichnet sich durch ihre geringe Bevölkerungsdichte aus, was viel Raum für Privatsphäre und Entspannung bietet. Trotz der ruhigen Umgebung sind Geschäfte des täglichen Bedarfs und Einrichtungen wie Schulen und Ärzte gut erreichbar, was den Standort ideal für Familien und Ruhesuchende macht. Entdecken Sie die Vorzüge dieser einzigartigen Lage, die Natur und Komfort harmonisch vereint.

Inhalte von Google Maps werden aufgrund deiner aktuellen Cookie-Einstellungen nicht angezeigt. Klicke auf die Cookie-Richtlinie (Funktionell), um den Cookie-Richtlinien von Google Maps zuzustimmen und den Inhalt anzusehen. Mehr dazu erfährst du in der Google Maps Datenschutzerklärung.

Kaufpreis: € 310.000,-- (VB)

Vermittlungsprovision: Mit Abschluss eines notariellen Kaufvertrages werden 3,57 % des Kaufpreises als Vermittlungsprovision inkl. MwSt. für den Käufer fällig. Irrtum und Zwischenverwertung bleibt vorbehalten. Alle Angaben beruhen auf Aussage des Verkäufers oder Dritte. Ein Maklervertrag kommt zustande, wenn Sie von diesem Angebot gebrauch machen, z. B. wenn Sie sich mit uns oder dem Eigentümer direkt in Verbindung setzen. Die angegebene Courtage zahlen Sie nur, wenn ein Vertrag über das angebotene Objekt mit Ihnen zustande kommt, selbst wenn wir beim Vertragsabschluss nicht mitwirken sollten.


Kontaktformular

Hinweis: Bitte die mit * gekennzeichneten Felder ausfüllen.